Maison neuve à
Pont-de-l'Arche
(27340) Référence :
AL2261277_40
Prix du projet : Maison avec Terrain
prix 264 500 €
- 5 pièces
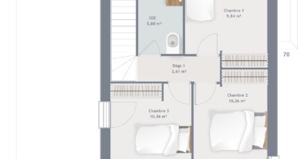
- 3 chambres
- Surface maison 90 m2
VENTE : maison de 5 pièces (90 m²) à Pont-de-l'Arche
MAISON 5 PIÈCES NEUVE - PROCHE DE ROUEN
À vendre : à quelques kilomètres de Rouen, découvrez cette maison de 5 pièces de 90 m² à Pont-de-l'Arche (27340).
Cette maison comporte 2 niveaux. Elle compte trois chambres, une cuisine et une salle de bains. Cette maison est neuve.
Le terrain de la propriété s'étend sur 500 m².
Il y a l'École Élémentaire Maxime Marchand, l'École Maternelle les Lutins et le Collège Hyacinthe Langlois à moins de 10 minutes à pied. Niveau transports, on trouve six gares à moins de 10 minutes en voiture. Les autoroutes A13 et A154 sont accessibles à moins de 7 km. Il y a un tennis, des commerces, trois boulangeries, deux supermarchés, trois boucheries-charcuteries et une épicerie à proximité du logement. Enfin, le marché Rue Prieur anime les environs chaque dimanche matin.
Son prix de vente est de 250 500 €.
Contactez Maisons France Confort Boos 02 35 80 66 62 / 06 15 24 16 98 pour tout renseignement sur la maison, sur les modalités de vente ou sur les démarches à suivre.
Annonce proposée par un Agent Commercial Partenaire.
Mentions légales
Terrain proposé par un partenaire foncier selon disponibilités et autorisation de publicité au prix de 84 000 €. Hors droit d'enregistrement et frais de notaire. Maison proposée, avec un contrat de construction de maison individuelle, dans le cadre de la loi du 19/12/1990, au prix de 180 500 € (Hors branchements et raccordements, papiers peints, peintures, revêtement de sol dans les chambres, qui sont chiffrés dans les travaux qui restent à charge du client. Tarif modifiable sans préavis). Étiquette énergie : A. Différents modèles disponibles pour ce terrain. Assurances et garanties du constructeur comprises (RC professionnelle, décennale, dommage ouvrage).Agence Maisons France Confort de Boos (76520)
- Téléphone :
- 02 35 80 66 62
- Adressse :
- 68 rue de la Forge Féret
76520 Boos, France
