Maison neuve à 
  Pornic
 (44210)  Référence :
 VC2301449_2 
Prix du projet : Maison avec Terrain
prix 422 000 €
- 4 pièces
- 3 chambres
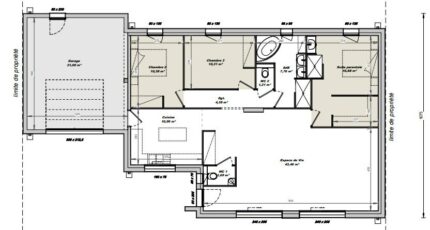
- Surface maison 107 m2
VENTE d'une maison de 4 pièces (107 m²) à Pornic
PROCHE DE SAINT-NAZAIRE - MAISON 4 PIÈCES NEUVE
En vente : localisée à 2 km de l'océan Atlantique et à deux pas de Saint-Nazaire, à Pornic (44210), nous vous proposons cette maison de 4 pièces de plain-pied de 107 m² et de 493 m² de terrain.
Elle offre trois chambres, une cuisine et une salle de bains. Cette maison est neuve.
Cinq établissements scolaires sont implantés à moins de 10 minutes . Niveau transports en commun, on trouve la gare Pornic juste à côté. Il y a un port de plaisance, des commerces, des boulangeries, un supermarché, trois poissonneries et un bureau de poste dans les environs.
Son prix de vente est de 422 000 €.
Prenez contact avec notre agence (COUCHAUX Vincent : 06-74-86-07-98) pour tout renseignement sur la maison. Maisons Tradilignes Pornic vous accompagne dans tous vos projets immobiliers et dans toutes vos démarches.
Mentions légales
Terrain proposé par un partenaire foncier selon disponibilités et autorisation de publicité au prix de 163 000 €. Hors droit d'enregistrement et frais de notaire. Maison proposée, avec un contrat de construction de maison individuelle, dans le cadre de la loi du 19/12/1990, au prix de 259 000 € (Hors branchements et raccordements, papiers peints, peintures, revêtement de sol dans les chambres, qui sont chiffrés dans les travaux qui restent à charge du client. Tarif modifiable sans préavis). Étiquette énergie : A. Différents modèles disponibles pour ce terrain. Assurances et garanties du constructeur comprises (RC professionnelle, décennale, dommage ouvrage).Agence Maisons Tradilignes de Pornic (44210)
- Téléphone :
- 02 40 82 59 91
- Adressse :
-  46 rue du Général de Gaulle
 44210 Pornic, France
 
  
  
  
  
  
  
 