Maison neuve à
Roissy-en-France
(95700) Référence :
TM2257521_1
Prix du projet : Maison avec Terrain
prix 370 000 €
- 5 pièces
- 3 chambres
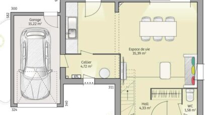
- Surface maison 90 m2
Maison T5 (90 m²) à vendre à Roissy-en-France
PROCHE DE PARIS - MAISON 5 PIÈCES NEUVE
À côté du RER B (station Parc des Expositions, 25 min de Paris), nous sommes heureux de vous présenter cette maison de 5 pièces de 90 m² à Roissy-en-France (95700).
Cette maison compte 2 niveaux. Elle se divise en trois chambres, une cuisine et une salle de bains. Cette maison est neuve.
Le terrain du bien est de 300 m².
L'École Maternelle Antoine de Saint-Exupéry et l'École Élémentaire Jean Mermoz sont implantées à moins de 10 minutes à pied. Niveau transports en commun, on trouve les lignes B et D du RER ainsi que 22 gares à moins de 10 minutes en voiture. Il y a une bibliothèque, deux bassins de natation, un tennis, deux boulangeries, des commerces, un supermarché, une épicerie et un bureau de poste à quelques minutes de la maison.
Son prix de vente est de 370 000 €.
Contactez Teddy MELES (tél : 06-17-56-83-36) pour plus d'informations sur cette maison, sur les démarches à suivre ou sur les modalités de vente. Maisons France Confort Magny-le-Hongre est là pour vous accompagner dans tous vos projets immobiliers.
Annonce proposée par un Agent Commercial Partenaire.
Mentions légales
Terrain proposé par un partenaire foncier selon disponibilités et autorisation de publicité au prix de 190 000 €. Hors droit d'enregistrement et frais de notaire. Maison proposée, avec un contrat de construction de maison individuelle, dans le cadre de la loi du 19/12/1990, au prix de 180 000 € (Hors branchements et raccordements, papiers peints, peintures, revêtement de sol dans les chambres, qui sont chiffrés dans les travaux qui restent à charge du client. Tarif modifiable sans préavis). Étiquette énergie : A. Différents modèles disponibles pour ce terrain. Assurances et garanties du constructeur comprises (RC professionnelle, décennale, dommage ouvrage).Agence Maisons France Confort de Magny-le-Hongre (77700)
- Téléphone :
- 01 84 80 92 96
- Adressse :
- 11 rue de Courtalin
77700 Magny-le-Hongre, France
