Maison neuve à
Saint-Georges-Motel
(27710) Référence :
ED2412215_1
Prix du projet : Maison avec Terrain
prix 370 152 €
- 8 pièces
- 5 chambres
- Surface maison 145 m2
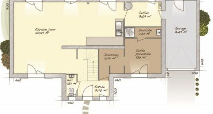
A construire sur la commune de St Georges Motel, une belle maison aux lignes traditionnelles (145 m²).
Dans un secteur recherché sur la commune de St Georges Motel, nous vous proposons ce projet maison de 8 pièces de 145 m² sur un terrain de 1513 m² dans un quartier calme.
Il s'agit d'une maison de 2 niveaux. Elle est composée de cinq chambres, une cuisine et de trois salles de bains.
Il y a l'École Primaire Consuelo Balsan à moins de 10 minutes à pied, deux boulangeries et un bureau de poste à proximité.
Côté transports en commun, on trouve la gare Dreux à moins de 10 minutes en voiture. Les nationales N12 et N154 sont accessibles à moins de 6 km et Évreux est située à 30 km.
Ce projet maison + terrain est proposée à l'achat pour 370 152 €.
Contactez notre agence Maisons Balency Gravigny, pour plus de renseignements.
Notre conseillère commerciale Élodie DUPRÉ (07-43-61-26-52) sera ravie de vous répondre.
Donnez vie à vos projets immobiliers avec Maisons Balency Gravigny.
Annonce proposée par un Agent Commercial Partenaire.
Mentions légales
Terrain proposé par un partenaire foncier selon disponibilités et autorisation de publicité au prix de 79 900 €. Hors droit d'enregistrement et frais de notaire. Terrain + Maison proposés au prix de 370 152 € (Hors branchements et raccordements, papiers peints, peintures, revêtement de sol dans les chambres. Tarif modifiable sans préavis). Etiquette énergie : A. Différents modèles disponibles pour ce terrain. Assurances et garanties du constructeur (RC professionnelle, décennale, dommage ouvrage, garantie de remboursement de l'acompte, livraison à prix et délai convenu) : https://www.maisons-balency.fr/informations-legales/. HEXAOM Services est enregistré auprès de l'ORIAS en tant que Courtier en financement, Niveau 1, sous le numéro 14001345.Agence Maisons Balency de Gravigny (27930)
- Téléphone :
- 02 32 51 49 29
- Adressse :
- 173ter Av Aristide Briand
27930 Gravigny, France