Maison neuve à
Saint-Laurent-Médoc
(33112) Référence :
YOSL3_1
Prix du projet : Maison avec Terrain
prix 316 000 €
- 7 pièces
- 5 chambres
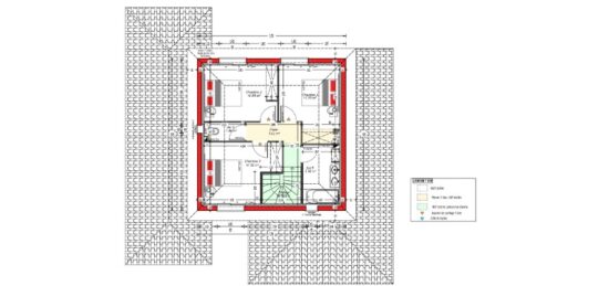
- Surface maison 135 m2
Maison de 7 pièces (135 m²) en vente à Saint-Laurent-Médoc
EMPLACEMENT PRIVILÉGIÉ - MAISON 7 PIÈCES NEUVE
À vendre : située à 15 km de l'océan Atlantique et à 29 km de Saint-Médard-en-Jalles, bénéficiant d'un emplacement d'exception dans Saint-Laurent-Médoc (33112), laissez vous charmer par cette maison de 7 pièces de plain-pied de 135 m² et de 820 m² de terrain.
Son intérieur offre cinq chambres, une cuisine et deux salles de bains. La maison est neuve.
Ce bien est situé dans un secteur prisé. Des écoles maternelles et élémentaires se trouvent à moins de 10 minutes en voiture, tout comme, comme l'École Maternelle les Petits Galopins. Niveau transports, il y a la gare Moulis-Listrac dans un rayon de 10 km. On trouve des bibliothèques, quatre tennis, des commerces, quatre boulangeries, un supermarché, trois épiceries et une supérette à quelques minutes à peine.
Il est à vendre pour la somme de 316 000 €.
N'hésitez pas à prendre contact avec Yoann OMARI (O6-89-15-95-39) pour toute question sur la maison.
Mentions légales
Idée de réalisation en modèle prêt à décorer sur l'un de nos terrains partenaires, sous réserve de disponibilités. Voir détails en agence.Agence Maisons de la Côte Atlantique de Ayguemorte-les-Graves (33640)
- Téléphone :
- 05 57 40 44 75
- Adressse :
- 1 allée de l'Agrostis
33640 Ayguemorte-les-Graves, France
