Maison neuve à
Sucé-sur-Erdre
(44240) Référence :
TD2419868_2
Prix du projet : Maison avec Terrain
prix 351 000 €
- 4 pièces
- 3 chambres
- Surface maison 90 m2
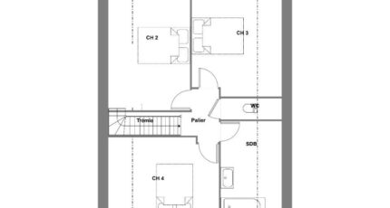
Maison T4 (90 m²) à vendre à Sucé-sur-Erdre
PROCHE DE NANTES - MAISON 4 PIÈCES NEUVE
En vente : à 27 km de l'océan Atlantique et à quelques kilomètres de Nantes, notre agence Maisons de l'Avenir Rezé est heureuse de vous proposer à Sucé-sur-Erdre (44240), cette maison de 4 pièces de 90 m² et de 340 m² de terrain.
C'est une maison de 2 niveaux. Son intérieur compte trois chambres, une cuisine et deux salles de bains.
Son prix de vente est de 351 000 €.
Contactez Thibault DUPONT (02-40-26-28-28) pour tout renseignement sur cette propriété, sur les modalités de vente ou sur les démarches à suivre. Maisons de l'Avenir Rezé vous accompagne à toutes les étapes de votre projet et dans tous vos projets immobiliers.
Mentions légales
Terrain proposé par un partenaire foncier selon disponibilités et autorisation de publicité au prix de 128 000 €. Hors droit d'enregistrement et frais de notaire. Terrain + Maison proposés au prix de 223 000 € (Hors branchements et raccordements, papiers peints, peintures, revêtement de sol dans les chambres. Tarif modifiable sans préavis). Etiquette énergie : A. Différents modèles disponibles pour ce terrain. Assurances et garanties du constructeur (RC professionnelle, décennale, dommage ouvrage, garantie de remboursement de l'acompte, livraison à prix et délai convenu) : https://www.maisonsdelavenir.com/mentions-legales/.Agence Maisons de l'Avenir de Rezé (44400)
- Téléphone :
- 02 40 26 28 28
- Adressse :
- 56, rue de la butte de Praud
44400 Rezé, France
