Maison neuve à
Ully-Saint-Georges (60730) Référence : FBUllystgeorges74_6

Prix du projet : Maison avec Terrain

prix 254 000 €

  • 6 pièces
  • 4 chambres
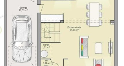
  • Surface maison 91 m2

VENTE d'une maison T6 (91 m²) à Ully-Saint-Georges
EMPLACEMENT PRIVILÉGIÉ - MAISON 6 PIÈCES NEUVE
En vente : à deux pas de Beauvais, notre agence Maisons France Confort Beauvais est ravie de vous proposer cette maison de 6 pièces de 91 m² et de 475 m² de terrain bénéficiant d'un emplacement privilégié dans Ully-Saint-Georges (60730). Elle compte quatre chambres, une cuisine et une salle de bains.
C'est une maison de 2 niveaux. Elle est neuve.
Cette maison se situe dans un secteur convoité. L'École Primaire Jean de la Fontaine est implantée à moins de 10 minutes à pied. Niveau transports, on trouve six gares à moins de 10 minutes en voiture. L'autoroute A16 et les nationales N31 et N184 sont accessibles à moins de 20 km. Il y a une boulangerie à proximité de la maison.
Elle est à vendre pour la somme de 254 000 €.
Contactez Fabrice BONELLO (06-09-50-50-09) pour plus d'informations sur la maison ou sur les modalités de vente. Maisons France Confort Beauvais vous accompagne dans tous vos projets immobiliers et dans toutes vos démarches.

Mentions légales

Terrain proposé par un partenaire foncier selon disponibilités et autorisation de publicité au prix de 92 600 €. Hors droit d'enregistrement et frais de notaire. Maison proposée, avec un contrat de construction de maison individuelle, dans le cadre de la loi du 19/12/1990, au prix de 161 400 € (Hors branchements et raccordements, papiers peints, peintures, revêtement de sol dans les chambres, qui sont chiffrés dans les travaux qui restent à charge du client. Tarif modifiable sans préavis). Étiquette énergie : A. Différents modèles disponibles pour ce terrain. Assurances et garanties du constructeur comprises (RC professionnelle, décennale, dommage ouvrage).

Contactez l'agence de Beauvais

03 44 04 40 04

    * Champs obligatoires

    Vos informations sont traitées par HEXAOM et transmises à un conseiller commercial qui vous contactera afin de répondre à votre demande. Les plans et images présentés sur notre site sont la propriété d’HEXAOM et ne peuvent pas être reproduits sans son accord. Pour retrouver notre politique de protection des données personnelles et exercer vos droits conformément à la « loi informatique et liberté » cliquez-ici.