Maison neuve à
Vernie
(72170) Référence :
LL2348392_1
Prix du projet : Maison avec Terrain
prix 215 000 €
- 5 pièces
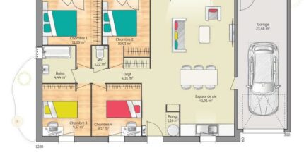
- 4 chambres
- Surface maison 92 m2
Vernie : maison F5 (92 m²) à vendre
PROCHE DU MANS - MAISON 5 PIÈCES NEUVE
À vendre : localisée à 26 km du Mans, notre agence Maine Construction Le Mans est ravie de vous proposer cette maison de 5 pièces de plain-pied de 92 m² et de 1 954 m² de terrain à Vernie (72170).
Elle dispose de quatre chambres, d'une cuisine et d'une salle de bains. Cette maison est neuve.
Il y a une école primaire dans le quartier. Côté transports, on trouve trois gares (Conlie, Crissé et Domfront-en-Champagne) à moins de 10 minutes en voiture. Les autoroutes A28 et A11 sont accessibles à moins de 19 km.
Elle est proposée à l'achat pour 215 000 €.
Contactez notre constructeur (LIVET Luc : 07-77-76-37-30) pour toute question sur la maison ou sur les modalités de vente. Donnez vie à vos projets immobiliers avec Maine Construction Le Mans.
Mentions légales
Terrain proposé par un partenaire foncier selon disponibilités et autorisation de publicité au prix de 47 168 €. Hors droit d'enregistrement et frais de notaire. Terrain + Maison proposés au prix de 215 000 € (Hors branchements et raccordements, papiers peints, peintures, revêtement de sol dans les chambres. Tarif modifiable sans préavis). Etiquette énergie : A. Différents modèles disponibles pour ce terrain. Assurances et garanties du constructeur (RC professionnelle, décennale, dommage ouvrage, garantie de remboursement de l'acompte, livraison à prix et délai convenu) : https://www.maine-construction.fr/mentions-legales/. HEXAOM Services est enregistré auprès de l'ORIAS en tant que Courtier en financement, Niveau 1, sous le numéro 14001345.Agence Maine Construction de Le Mans (72000)
- Téléphone :
- 02 43 21 93 33
- Adressse :
- Rond-point de César Antarès
72000 Le Mans, France
