Maison neuve à
Villiers-Saint-Denis
(02310) Référence :
CY2325025_10
Prix du projet : Maison avec Terrain
prix 265 000 €
- 5 pièces
- 3 chambres
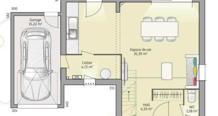
- Surface maison 90 m2
VENTE : maison de 5 pièces (90 m²) à Villiers-Saint-Denis
PROCHE DE MEAUX - MAISON 5 PIÈCES NEUVE
À quelques minutes de la gare de Nanteuil-Saâcy (Paris à 50 min par le Transilien P), notre agence Maisons France Confort Magny-le-Hongre est heureuse de vous présenter cette maison de 5 pièces de 90 m² en vente à Villiers-Saint-Denis (02310).
Cette maison comporte 2 niveaux. Son intérieur est composé de trois chambres, d'une cuisine et d'une salle de bains. La maison est neuve.
Le terrain de la propriété est de 1 406 m².
On trouve une école primaire dans le quartier. Côté transports, il y a les gares Nanteuil-Saâcy, Nogent-l'Artaud-Charly et Chézy-sur-Marne à moins de 10 minutes en voiture. Il y a un accès à l'autoroute A4 à 9 km et Meaux se situe à 27 km. On trouve un tennis dans les environs.
Son prix de vente est de 265 000 €.
N'hésitez pas à prendre contact avec notre agence (YAHIAOUI Cedric : 06-66-57-00-63) pour tout renseignement sur cette maison.
Annonce proposée par un Agent Commercial Partenaire.
Mentions légales
Terrain proposé par un partenaire foncier selon disponibilités et autorisation de publicité au prix de 89 900 €. Hors droit d'enregistrement et frais de notaire. Maison proposée, avec un contrat de construction de maison individuelle, dans le cadre de la loi du 19/12/1990, au prix de 175 100 € (Hors branchements et raccordements, papiers peints, peintures, revêtement de sol dans les chambres, qui sont chiffrés dans les travaux qui restent à charge du client. Tarif modifiable sans préavis). Étiquette énergie : A. Différents modèles disponibles pour ce terrain. Assurances et garanties du constructeur comprises (RC professionnelle, décennale, dommage ouvrage).Agence Maisons France Confort de Magny-le-Hongre (77700)
- Téléphone :
- 01 84 80 92 96
- Adressse :
- 11 rue de Courtalin
77700 Magny-le-Hongre, France
