Maison neuve à
Arès (33740) Référence : AF2323277

Prix du projet : Maison avec Terrain

prix 710 000 €

  • 4 pièces
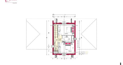
  • 3 chambres
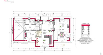
  • Surface maison 120 m2

À Arès, dans un quartier calme et central, à deux pas des plages et du marché, ce projet de maison arcachonnaise de 120 m² habitables s'intègre parfaitement sur un terrain plat, bien orienté et idéalement situé.

La maison propose trois chambres, dont une suite parentale, un étage avec deux salles de bain, une belle pièce de vie ouverte, ainsi qu'un garage attenant pour plus de praticité.

L'architecture, fidèle au style du Bassin, allie enduit clair, bois apparent et des finitions personnalisables selon vos envies.

Un projet rare dans un secteur prisé, tout à pied, entre commerces, plage et pistes cyclables.

Contactez Alexis FAUCHON au O7.87.0O.29.55 pour plus d'informations.

Mentions légales

Terrain proposé par un partenaire foncier selon disponibilité dans le cadre d’un projet de construction avec Couleur Villas. Les descriptions, photographies, surfaces et prix illustrant l’annonce sont fournies à titre indicatif et ne sont pas contractuels. Non soumis au DPE. Différents modèles disponibles.

Contactez l'agence de Andernos-les-Bains

05 56 07 00 00

    * Champs obligatoires

    Vos informations sont traitées par HEXAOM et transmises à un conseiller commercial qui vous contactera afin de répondre à votre demande. Les plans et images présentés sur notre site sont la propriété d’HEXAOM et ne peuvent pas être reproduits sans son accord. Pour retrouver notre politique de protection des données personnelles et exercer vos droits conformément à la « loi informatique et liberté » cliquez-ici.