Maison neuve à
Creully
(14480) Référence :
JS2356313_4
Prix du projet : Maison avec Terrain
prix 233 000 €
- 5 pièces
- 3 chambres
- Surface maison 95 m2
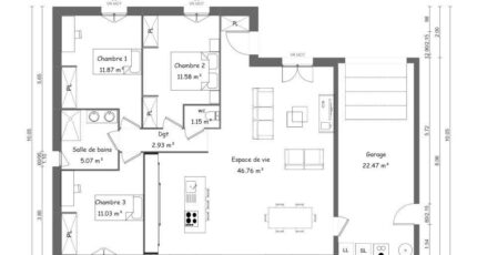
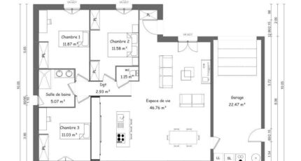
VENTE : maison de 5 pièces (95 m²) à Creully
IDÉALEMENT SITUÉE - MAISON 5 PIÈCES NEUVE
À vendre : à 8 km de la Manche et à deux pas de Caen, nous sommes ravis de vous proposer, idéalement située dans Creully (14480), cette maison de 5 pièces de plain-pied de 95 m² et de 425 m² de terrain. Elle est composée de trois chambres, d'une cuisine et de deux salles de bains.
Cette maison est neuve.
Ce bien se trouve dans un quartier convoité. Des écoles (de la maternelle au lycée) sont implantées à moins de 10 minutes à pied, tout comme, parmi lesquelles l'Institut Agricole Privé Lemonnier-Site de Saint Gabriel Brécy et le Collège Jean de la Varende. Côté transports en commun, on trouve les gares Audrieu et Bretteville-Norrey à moins de 10 minutes en voiture. Il y a un accès à la nationale N13 à 7 km. Il y a une bibliothèque, deux boulangeries, quatre commerces, une supérette et un bureau de poste à proximité.
Il est à vendre pour la somme de 233 000 €.
N'hésitez pas à prendre contact avec notre agence (HUE Emilie : 06-29-81-46-66) pour toute question sur la maison ou sur les modalités de vente. Maisons France Confort Bayeux est là pour vous accompagner dans tous vos projets immobiliers.
Annonce proposée par un Agent Commercial Partenaire.
Mentions légales
Terrain proposé par un partenaire foncier selon disponibilités et autorisation de publicité au prix de 78 000 €. Hors droit d'enregistrement et frais de notaire. Maison proposée, avec un contrat de construction de maison individuelle, dans le cadre de la loi du 19/12/1990, au prix de 155 000 € (Hors branchements et raccordements, papiers peints, peintures, revêtement de sol dans les chambres, qui sont chiffrés dans les travaux qui restent à charge du client. Tarif modifiable sans préavis). Étiquette énergie : A. Différents modèles disponibles pour ce terrain. Assurances et garanties du constructeur comprises (RC professionnelle, décennale, dommage ouvrage).Agence Maisons France Confort de Bayeux (14400)
- Téléphone :
- 02 31 51 20 91
- Adressse :
- 2, rue Saint Loup
14400 Bayeux, France
