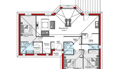
Maison neuve à
Pacy-sur-Eure
(27120)
- Surface maison 109 m2
- 6 pièces
- 4 chambres
- 285 789 €
Nos annonces de maisons neuves sont mises à jour quotidiennement.
Nous sélectionnons, avec nos partenaires fonciers, les meilleurs terrains constructibles à vendre et vous proposons nos annonces maison + terrain.
Pour rester informé des nouvelles offres de terrain et maison, créez vos alertes mails.
Une maison neuve est une maison qui n’a jamais été habitée. On peut aussi considérer comme une maison neuve, une construction récente ou pas encore construite. Généralement elle est issue à partir de plans modernes. Les maisons neuves offrent généralement des avantages tels que des garanties constructeur, des équipements et des installations récents et performants, une absence de problèmes potentiels liés à l’ancienneté d’une maison existante, etc. Les propriétaires peuvent également personnaliser leurs maisons neuves en choisissant les finitions, les couleurs, les matériaux, etc.
18621 annonces identifiées