Maison neuve à 
  Pornic
 (44210)  Référence :
 VC2301449_1 
Prix du projet : Maison avec Terrain
prix 330 000 €
- 4 pièces
- 3 chambres
- Surface maison 84 m2
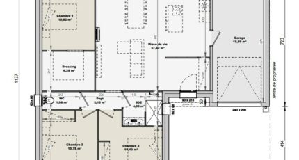
VENTE : maison T4 (84 m²) à Pornic
MAISON 4 PIÈCES NEUVE - PROCHE DE SAINT-NAZAIRE
En vente à 2 km de l'océan Atlantique et à deux pas de Saint-Nazaire, à Pornic (44210), Maisons Tradilignes Pornic vous présente cette maison de 4 pièces de plain-pied de 84 m² et de 493 m² de terrain. Elle dispose de trois chambres, d'une cuisine et d'une salle de bains.
Cette maison est neuve.
Cinq établissements scolaires sont implantés à moins de 10 minutes . Niveau transports, on trouve la gare Pornic à quelques km de la maison. Il y a un port de plaisance, des commerces, des boulangeries, un supermarché, une supérette et trois poissonneries dans les environs.
Elle est proposée à l'achat pour 330 000 €.
N'hésitez pas à prendre contact avec Vincent COUCHAUX (06-74-86-07-98) pour obtenir de plus amples informations sur la maison ou sur les modalités de vente.
Mentions légales
Terrain proposé par un partenaire foncier selon disponibilités et autorisation de publicité au prix de 163 000 €. Hors droit d'enregistrement et frais de notaire. Maison proposée, avec un contrat de construction de maison individuelle, dans le cadre de la loi du 19/12/1990, au prix de 167 000 € (Hors branchements et raccordements, papiers peints, peintures, revêtement de sol dans les chambres, qui sont chiffrés dans les travaux qui restent à charge du client. Tarif modifiable sans préavis). Étiquette énergie : A. Différents modèles disponibles pour ce terrain. Assurances et garanties du constructeur comprises (RC professionnelle, décennale, dommage ouvrage).Agence Maisons Tradilignes de Pornic (44210)
- Téléphone :
- 02 40 82 59 91
- Adressse :
-  46 rue du Général de Gaulle
 44210 Pornic, France
 
  
  
  
  
  
  
 